В данном разделе размещена информация справочного характера, предоставленная открытыми источниками.
Компания не занимается реализацией и сопровождением товаров и услуг не связанных с производством и обслуживанием грузоподъёмных механизмов.
Методика определения неучтенных расходов и потерь воды в
системах коммунального водоснабжения
(утв. приказом
Минпромэнерго РФ от 20 декабря 2004 г. № 172)
Настоящая Методика определения неучтенных расходов и потерь
воды в системах коммунального водоснабжения разработана на основе ряда
законодательных актов Российской Федерации, строительных норм и правил,
санитарных правил и норм, правил пожарной безопасности, других нормативных
документов.
Методика
служит для определения неучтенных расходов и потерь воды в системах ее подачи и
распределения.
Методика
предназначена для предприятий (организаций) водопроводно-канализационного
хозяйства, эксплуатирующих централизованные системы коммунального водоснабжения
городов и населенных пунктов и носит рекомендательный характер.
Методика
содержит порядок определения структуры и величины неучтенных расходов и потерь
воды в коммунальных системах ее подачи и распределения и разработки мероприятий
по снижению потерь и экономии воды в организациях водопроводно-канализационного
хозяйства Российской Федерации и не предназначена для обоснования норм
водопотребления населением.
В
Методике приводится пример определения неучтенных расходов и потерь воды в
системе подачи и распределения воды и удельного водопотребления в жилищном
фонде (результаты измерений и обработки данных).
Методика
разработана ГУП "Водоканал Санкт-Петербурга" (Ф.В. Кармазинов, П.П.
Махнев, М.Ю. Юдин) и Кафедрой водоснабжения Санкт-Петербургского
государственного архитектурно-строительного университета (Ю.А. Феофанов) при
участии Департамента строительства и жилищно-коммунального хозяйства
Минпромэнерго России (С.И. Круглик, Л.Д. Соловьева).
Методика
прошла рецензирование в ГУП "МосводоканалНИИпроект", ОАО "НИИ
КВОВ", ГП "Союзводоканалпроект", НИИ ВОДГЕО, Северо-Западной
Ассоциации Водоснабжения и Водоотведения "БАЛТВОД", ГУП
"Жилищно-коммунальное хозяйство Ленинградской области", ГУП
"Санкт-Петербургский научно-исследовательский институт АКХ им. К.Д.
Панфилова" и получила рекомендации к утверждению.
Разработчики
методики выражают благодарность за замечания и предложения, которые содержались
в заключениях рецензентов и частично учтены при редактировании материала: ГУП
"МосводоканалНИИпроект" (О.Г. Примин), ОАО НИИ КВОВ (Р.Ш. Непаридзе,
Г.Л. Железнова, Г.А. Орлов), ГП "Союзводоканалпроект" (И.И. Баранов,
Н.В. Савина), НИИ ВОДГЕО (И.А. Нечаев).
Разъяснения
по применению методики дает министерство промышленности и энергетики Российской
Федерации.
Замечания
и предложения по настоящим Методическим рекомендациям просьба направлять в ГУП
"Водоканал Санкт-Петербурга": 193015, г. Санкт-Петербург, ул.
Кавалергардская, д. 42. Тел.: (812) 274-10-90, факс: (812) 274-13-61, и на
Кафедру водоснабжения Санкт-Петербургского государственного архитектурно-строительного
университета по адресу: 198005, г. Санкт-Петербург, ул. 2-я Красноармейская, д.
4. Тел./факс: (812) 316-48-49. E-mail: prm2@vodokanal.spb.ru
Содержание
Улучшение
обеспечения населения питьевой водой высокого качества и рациональное
использование водных ресурсов - приоритетные задачи жилищно-коммунальной
реформы. Для решения этих задач необходима разработка и реализация мер,
обеспечивающих повышение эффективности и надежности работы систем
водоснабжения, совершенствование систем подачи и распределения воды, развитие
нормативно-правовой базы и хозяйственного механизма водопользования,
стимулирующего экономию питьевой воды.
Дефицит
питьевой воды во многом связан со значительными объемами ее потерь и утечек,
вызванных высокой степенью износа сетей и оборудования, нерациональным
расходованием водопроводной воды. Значительное количество питьевой воды нерационально
расходуется на технические цели промышленными предприятиями, в то время как во
многих случаях без ущерба для производства можно использовать воду технического
качества, себестоимость которой в несколько раз ниже.
В
настоящее время остро стоит проблема рационального использования воды в жилом
секторе. По данным НИИ КВОВ, утечки в жилищном фонде в среднем по стране
оцениваются в размере 20-30% от суммарного отпуска воды населению. Ликвидация
утечек, ремонт внутренних водопроводных сетей и применение более совершенной
арматуры, установка средств измерений, снижение избыточных напоров у
потребителей позволяет, как показывает практика, снизить объемы водопотребления
в жилищном фонде на 15-25%.
Внедрение
мероприятий по водосбережению позволит устранить потери воды, сократить объемы
водопотребления и водоотведения, существенно ослабить, а в отдельных регионах и
ликвидировать дефицит воды питьевого качества, снизить нагрузку на
водопроводные и канализационные станции, повысив качество их работы, и таким
образом увеличить зону обслуживания населения действующими системами
водоснабжения без их расширения и нового строительства.
Ликвидация
потерь и утечек в жилищном фонде позволит увеличить полезную мощность
внутреннего водопровода и канализации, исключить отрицательное воздействие
утечек воды на фундаменты и другие строительные конструкции зданий.
Для
контроля за водопотреблением большое значение имеет правильный учет воды,
выполняемый с помощью средств измерений, которые должны применяться на всех
стадиях подачи и реализации воды.
Для
сокращения и устранения непроизводительных затрат и потерь воды необходимо
произвести анализ структуры, определить величины потерь воды в системах
коммунального водоснабжения, отдельно оценить объемы полезного водопотребления,
допустимую и неустранимую величину потерь воды.
Выявление
потерь питьевой воды и разработку мероприятий по их сокращению необходимо
осуществлять на основе единого методического подхода, апробированного в
регионах Российской Федерации и оформленного соответствующим документом.
Таким
документом является Методика определения неучтенных расходов и потерь воды в
системах коммунального водоснабжения (далее - Методика).
Методика
составлена на основании анализа и обобщения данных эксплуатационных служб
систем водоснабжения и канализации ряда городов России, экспериментальных
данных, полученных при исследовании неучтенных расходов и потерь воды в
системах подачи и распределения воды Санкт-Петербурга и других городов.
* - Основные понятия приняты в
соответствии со следующей законодательной и нормативно-технической
документацией: Водным
кодексом РФ, Правилами пользования системами коммунального водоснабжения и
канализации в Российской Федерации, постановлением Правительства РФ от 12.11.02
№ 814 "О порядке утверждения норм естественной убыли при хранении и
транспортировке товарно-материальных ценностей".
Водоснабжение - технологический процесс,
обеспечивающий забор, подготовку, транспортировку и передачу абонентам питьевой
воды;
централизованная
система коммунального водоснабжения
- комплекс инженерных сооружений населенных пунктов для забора, подготовки,
транспортировки и передачи абонентам питьевой воды;
водопроводная
сеть - система
трубопроводов и сооружений на них, предназначенных для транспортировки и
передачи абонентам воды в системе водоснабжения;
абонент - юридическое лицо, а также
предприниматели без образования юридического лица, имеющие в собственности,
хозяйственном ведении или оперативном управлении объекты, системы водоснабжения
и (или) канализации, которые непосредственно присоединены к системам
коммунального водоснабжения и (или) канализации, заключившие с организацией
водопроводно-канализационного хозяйства в установленном порядке договор на
отпуск (получение) воды и (или) прием (сброс) сточных вод;
водопотребление - использование воды абонентом
(субабонентом) на удовлетворение своих нужд;
авария
в системе коммунального водоснабжения
- повреждение или выход из строя систем коммунального водоснабжения или
отдельных сооружений, оборудования, устройств, повлекшее прекращение либо
существенное снижение объемов водопотребления, качества питьевой воды или
причинение ущерба окружающей среде, имуществу юридических или физических лиц и
здоровью населения;
предприятие
(организация) водопроводно-канализационного хозяйства - предприятие (организация),
осуществляющее отпуск воды из системы водоснабжения и (или) прием сточных вод в
систему канализации и эксплуатирующее эти системы;
питьевая
вода - вода после
подготовки или в естественном состоянии, отвечающая установленным санитарными
нормами требованиям и предназначенная для питьевых и бытовых нужд населения и
(или) производства пищевой продукции;
самовольное
присоединение к системам водоснабжения
- присоединение, произведенное без разрешительной документации либо с
нарушением технических условий;
самовольное
пользование -
пользование системой водоснабжения при отсутствии договора на отпуск
(получение) воды, а также в случае нарушения условий договора абонентом;
средство
измерений (прибор) -
техническое средство, предназначенное для измерений, имеющее нормированные
метрологические характеристики, воспроизводящее и (или) хранящее единицу
физической величины, размер которой принимается неизменным (в пределах
установленной погрешности) в течение определенного интервала времени, и
разрешенное к использованию для коммерческого учета;
неучтенные
расходы и потери воды -
разность между объемами подаваемой воды в водопроводную сеть и потребляемой
(получаемой) абонентами;
утечки
воды - самопроизвольное
истечение воды из емкостных сооружений и различных элементов водопроводной сети
при нарушении их герметичности и авариях;
скрытые
утечки воды - часть
утечек воды, не обнаруживаемых при внешнем осмотре водопроводной сети;
естественная
убыль воды - потеря
(уменьшение массы воды при сохранении ее качества в пределах требований (норм),
устанавливаемых нормативными правовыми актами), являющаяся следствием
естественного изменения биологических и (или) физико-химических свойств воды;
подача
воды - объем воды,
поданный в водопроводную сеть зоны обслуживания от всех источников за расчетный
период;
реализация
воды - объем реализованной
абонентам воды по выставленным счетам за водоснабжение за расчетный период;
потери
воды из водопроводной сети
- совокупность всех видов технологических потерь, естественной убыли, утечек и
хищений воды при ее транспортировании, хранении и распределении.
1.3.1.
Методика определяет:
-
порядок расчета и форму отчетности при определении неучтенных расходов и потерь
воды в коммунальных системах подачи и распределения воды;
-
порядок определения естественной убыли воды при транспортировке и передаче ее
абонентам;
-
порядок определения мест повреждений и утечек на водопроводной сети;
-
порядок определения объемов скрытых утечек воды на водопроводной сети.
1.3.2.
Целью Методики является разработка эффективных способов и приемов определения
неучтенных расходов и потерь воды при ее транспортировании, распределении и
хранении в системах коммунального водоснабжения.
1.3.3.
Результатом применения Методики на предприятиях водопроводно-канализационного
хозяйства должны являться мероприятия, направленные на сокращение потерь и
утечек воды, снижение отказов в системе подачи и распределения воды, сокращение
объемов водопотребления и себестоимости водопроводной воды.
1.3.4.
Методика предназначена для предприятий (организаций) водопроводно-канализационного
хозяйства и собственников систем коммунального водоснабжения и канализации
независимо от их форм собственности.
1.3.5.
Методика не распространяется на нецентрализованные системы водоснабжения, а
также на системы коммунального водоснабжения, эксплуатирующиеся в Северной
строительно-климатической зоне.
1.3.6.
Методика регламентирует структуру и порядок определения величины неучтенных
расходов и потерь воды в системах подачи и распределения, в которых учет воды
ведется на основе средств измерений в соответствии с гражданским
законодательством и Правилами пользования системами коммунального водоснабжения
и канализации в Российской Федерации.
2.1.
Неучтенные расходы и потери вода разделяются на следующие группы (рис. 1):
-
полезные расходы воды;
-
потери воды из водопроводной сети и емкостных сооружений.
2.2.
Неучтенные полезные расходы воды делятся на:
-
технологические;
-
организационно-учетные.
2.3.
Потери воды из водопроводной сети и емкостных сооружений включают:
-
утечки воды из водопроводной сети и емкостных сооружений;
-
потери воды за счет естественной убыли.
Структура неучтенных расходов и потерь воды

Рис. 1
* В случае если самовольное пользование
было направлено на удовлетворение нужд потребителя, его следует относить к
полезным расходам, несмотря на неправомерный характер использования воды. В случае
если самовольное пользование представляло собой сброс воды через самовольную
врезку, его следует относить к потерям воды.
2.4.
Технологические расходы воды
2.4.1.
Расходы воды на собственные нужды организации водопроводно-канализационного
хозяйства:
-
промывка и дезинфекция водопроводных сетей;
-
собственные нужды насосных станций (охлаждение подшипников и т.д.);
-
чистка резервуаров (опорожнение, промывка, дезинфекция и т.д.);
-
технологические нужды эксплуатации сети водоотведения (промывка и прочистка
сетей).
2.4.2.
Расходы воды на противопожарные нужды:
-
тушение пожаров;
-
проверка пожарных гидрантов.
2.4.3.
Расходы воды на нужды городского хозяйства, не предъявляемые к оплате
потребителям по решению местных органов власти,
2.5.
Организационно-учетные неучтенные расходы воды
2.5.1.
Расходы воды, не зарегистрированные средствами измерений вследствие
недостаточной чувствительности, наличия погрешности приборов и
неодновременности снятия показаний приборов:
-
погрешность средств измерения (приборов) в узлах учета подачи воды на
водопроводных станциях;
-
погрешность средств измерения (приборов) в узлах учета потребляемой воды у
абонентов;
-
погрешность измерения расходов воды вследствие неодновременности снятия
показаний приборов, установленных в узлах учета подачи и потребления воды.
2.6.
Потери и утечки воды из водопроводной сети и емкостных сооружений
2.6.1.
Утечки воды из водопроводной сети и емкостных сооружений:
-
скрытые утечки воды из водопроводной сети и емкостных сооружений;
-
видимые утечки воды при авариях и повреждениях трубопроводов, арматуры и
сооружений;
-
утечки воды через водоразборные колонки;
-
утечки через уплотнения сетевой арматуры;
-
потери воды при ремонте трубопроводов, арматуры и сооружений.
2.6.2.
Самовольное пользование.
2.6.3.
Потери воды за счет естественной убыли:
-
потери от просачивания воды при ее подаче по напорным трубопроводам;
-
испарение воды из открытых резервуаров;
-
потери от просачивания воды при ее хранении в РЧВ, размещенных на водопроводной
сети, при их исправном техническом состоянии;
-
потери на брызгоунос (ветровой и капельный унос) и испарение воды при
эксплуатации фонтанов, установленных на водопроводной сети в случае, если
фонтанные системы имеют балансовую принадлежность организации ВКХ.
2.7.
Формирование структуры и оценку размера неучтенных расходов и потерь воды
следует систематизировать и обрабатывать в табличной форме по прилагаемому
образцу (приложение
1). Результаты рекомендуется накапливать в базе данных.
Примечание.
Все виды расходов, упоминаемые в Методике, представляют собой расходы (объемы)
воды в м3 за определенный период (сутки, месяц, год).
3.1.
Объем неучтенных расходов и потерь воды надлежит устанавливать способами,
объективность и достоверность которых может быть проверена на любом этапе их
определения.
3.2.
Порядок расчета, расчетные формулы и форма представления результатов приведены
в приложении
1.
3.3.
Технологические расходы воды.
3.3.1.
Оценка расходов воды на собственные нужды организации
водопроводно-канализационного хозяйства.
а)
Расходы воды на обслуживание производственных фондов систем водоснабжения
определяются по показаниям средств измерений, установленных на трубопроводах,
подводящих воду к обслуживаемым фондам. При невозможности применения средств
измерений, расходы воды на обслуживание производственных фондов (на промывку,
дезинфекцию, очистку трубопроводов и резервуаров) оцениваются в соответствии с п. 1.1-1.3 приложения 1.
б)
Технологические нужды эксплуатации сети водоотведения (промывка и прочистка сетей)
принимаются согласно п.1.4
приложения 1.
3.3.2.
Оценка расходов на противопожарные нужды.
а)
Расходы воды на цели пожаротушения (из пожарных гидрантов, внутренних пожарных
кранов, спринклерных и дренчерных систем, автоцистерн), потребляемой без
средств измерений, определяются в соответствии с п. 1.5.1 приложения 1.
б)
Расходы воды на проверку действия пожарных гидрантов, в том числе на проверку
пропускной способности участков водопроводной сети при работе гидрантов на
водоотдачу определяются в соответствии с п. 1.5.2 приложения 1.
3.3.3.
Оценка расходов воды на нужды городского хозяйства, не предъявляемых к оплате
потребителям по решению местных органов власти.
а)
Отпуск воды на нужды городского хозяйства обуславливается в договорах между
предприятием (организацией) водопроводно-канализационного хозяйства и
соответствующими службами городского хозяйства. Учет объемов воды, расходуемых
специализированными предприятиями (организациями) на поливку территорий и
зеленых насаждений, заливку катков и т.д., производится в соответствии с п. 52
Правил [1].
Перечисленные расходы воды на нужды городского хозяйства включаются в
реализацию воды.
б)
В качестве неучтенных расходов принимаются потери специализированных
организаций при заборе воды на поливку территорий автотранспортом, которые не
учитываются нормами на поливку территорий и зеленых насаждений и возникают
вследствие неправильного пользования водоразборными устройствами пунктов
заправки (работа на проток, несвоевременное информирование работников
предприятия водопроводно-канализационного хозяйства о повреждениях и др.).
Расчет этих потерь выполняется в соответствии с п.
1.6 приложения 1.
в)
Расходы воды на восполнение потерь воды при эксплуатации фонтанов (потери на
брызгоунос (ветровой и капельный унос) и испарение воды) относятся к категории
естественная убыль и определяются по нормам естественной убыли воды при
транспортировке и передаче абонентам (приложение
2).
3.3.4.
Самовольное пользование.
Расходы
воды, не зарегистрированные организацией водопроводно-канализационного
хозяйства и не оплаченные потребителями при самовольном пользовании,
допускается учитывать на основании данных о выявленном пользовании водой за
предыдущий отчетный период.
Расчеты
оформляются в соответствии с п.
4, приложения 1.
3.4.
Организационно-учетные расходы воды.
3.4.1.
Расходы воды, не зарегистрированные средствами измерений вследствие
недостаточной чувствительности приборов (расходы ниже порога чувствительности),
определяются по п.
2.1 приложения 1.
3.4.2.
Объем воды, неучтенный вследствие погрешности средства измерения, определяется
в соответствии с п. 2.2
приложения 1.
3.4.3.
При суммировании расходов воды, измеренных разными средствами измерения,
погрешность принимается равной сумме погрешностей использованных средств
измерения.
3.5.
Потери воды из водопроводной сети и емкостных сооружений.
3.5.1.
Потери воды из водопроводной сети и емкостных сооружений (при повреждениях и
авариях, расходы на опорожнение при устранении переломов и трещин с заменой
трубы, утечки из емкостных сооружений и через уплотнения сетевой арматуры, в
т.ч. водоразборные колонки) определяются в соответствии с п.п. 3.1-3.5 приложения 1.
3.5.2.
Потери на естественную убыль воды (п. 5 приложения 1).
Естественная
убыль воды определяется в соответствии с приложением
2. В нее включаются:
а)
потери от просачивания воды при ее подаче по напорным трубопроводам;
б)
потери от просачивания воды при ее хранении в РЧВ, размещенных на водопроводной
сети, при их исправном техническом состоянии;
в)
потери на брызгоунос (ветровой и капельный унос) и испарение воды при
эксплуатации фонтанов, установленных на водопроводной сети в случае, если фонтанные
системы имеют балансовую принадлежность организации ВКХ.
3.6.
Скрытые утечки воды определяются любыми из методов, перечисленных в приложении
4, в зависимости от оснащения предприятий ВКХ измерительными приборами.
Расчет объема скрытых утечек воды дается в п. 7 приложения 1.
3.7.
Неучтенные потери и утечки воды по невыясненным причинам (не выявленное
самовольное пользование, погрешность измерения расходов воды вследствие
неодновременности снятия показаний приборов, установленных в узлах учета подачи
и потребления воды, погрешность определения скрытых утечек и др.) определяются
согласно п.
9 и 10
приложения 1.
* Правила
пользования системами коммунального водоснабжения и канализации РФ, утв.
постановлением Правительства РФ от 12.02.99 № 167.
|
№ п/п
|
Вид
неучтенного расхода
|
Формула
расчета месячного показателя
|
Объем, м3
|
Обоснование
|
|
|
1
|
2
|
3
|
4
|
5
|
|
|
1
|
Технологические
расходы воды, в т.ч.
|
Сумма
объемов воды W(1) с п. 1.1 по п.
1.6
|
|
|
|
|
1.1
|
Промывка
водопроводных сетей, в т.ч.
|
Сумма
объемов воды W(1.1) с п. 1.1.1 по
п.
1.1.7
|
|
|
|
|
1.1.1
|
Промывка водопроводных
тупиков
|
Wпр1=3600Sfiviti=3600p/4Sdi2viti=2800Sdi2viti
V - скорость при промывке i-го
тупика, м/с;
fi - площадь сечения i-го
тупика, м2;
di - диаметр i-го
тупика, м;
ti - продолжительность промывки
тупика, ч
|
Адрес
|
di
|
vi
|
ti
|
Wпр1i
|
Продолжительность промывки тупика принимается
по опыту эксплуатации, но не менее 1 ч. Скорость
принимается в зависимости от способа
промывки: при водяной промывке - 1,5 м/с, при гидромеханической или гидропневматической
промывке - 1,5-3 м/с
|
|
|
…
|
…
|
…
|
…
|
…
|
|
|
Сумма Wпр1i
|
|
|
1.1.2
|
Промывка водопроводных
сетей (профилактическая
|
Wпр2=2800Sdi2viti
vi - скорость при промывке, м/с;
di - диаметр i-го
промываемого участка, м;
ti - продолжительность промывки i-го
промываемого участка, ч
|
Адрес
|
di
|
vi
|
ti
|
Wпр2i
|
Продолжительность промывки принимается по опыту эксплуатации, но не менее 4 ч. Скорость
принимается в зависимости от способа
промывки: при водяной промывке - 1-1,5 м/с, при гидромеханической или
гидропневматической промывке - 1,5-3
м/с
|
|
|
…
|
…
|
…
|
…
|
…
|
|
|
Сумма Wпр2i
|
|
|
1.1.3
|
Дезинфекция водопроводных
сетей
|
Wд=p/4Sdi2Li(К1+К2)=0,785Sdi2Li(К1+К2)
di - диаметр i-го
промываемого участка, м;
Li - протяженность i-го
промываемого участка, м;
К1 и К2 - коэффициенты, учитывающие необходимое увеличение
объема воды на дезинфекцию и промывку для достижения концентраций хлорной
воды в наиболее удаленной точке участка трубопровода, составляющих по СНиП
3.05.04-85*не менее 0,3
г/м3 остаточного хлора в
промывной воде.
Или при известной продолжительности дезинфекции:
Wдi=1,57Sdi2Li+0,785Sdi2ti
ti - продолжительность дезинфекции i-того
промываемого участка, ч.
|
Адрес
|
di
|
Li
|
Wдi
|
К1 и К2
принимаются по опытной
эксплуатации, при отсутствии
данных допускается К1 и К2 принимать
соответственно 2 и 10. При известной продолжительности пропуска воды для дезинфекции расчет должен выполняться по продолжительности
|
|
|
…
|
…
|
…
|
…
|
|
|
Сумма Wдi
|
|
|
1.1.4
|
Промывка водопроводных
сетей после капитального
ремонта
|
Wпркр1=2800Sdi2viti
di - диаметр i-го
промываемого участка, м;
ti - продолжительность промывки i-го
промываемого участка, ч
|
Адрес
|
di
|
vi
|
ti
|
Wпркр1i
|
Продолжительность промывки принимается по опыту эксплуатации, но не менее 1 ч. Рекомендуется
водяная промывка. Скорость при
водяной промывке - 1-1,5 м/с
|
|
|
…
|
…
|
…
|
…
|
…
|
|
|
Сумма Wпркр1i
|
|
|
1.1.5
|
Дезинфекция водопроводных
сетей после капитального ремонта
|
Wдкр=0,785Sdi2Li+(К1+К2)
di - диаметр i-го
промываемого участка, м;
Li - протяженность i-го
промываемого участка, м;
К1 и К2
- коэффициенты, учитывающие необходимое увеличение объема воды на дезинфекцию
и промывку для достижения концентраций хлорной воды в наиболее удаленной
точке участка трубопровода, составляющих по СНиП
3.05.04-85*не менее 0,3
г/м3 остаточного хлора в
промывной воде.
Или при известной продолжительности дезинфекции:
Wдi=1,57Sdi2Li+0,785Sdi2+tivi
ti - продолжительность дезинфекции i-го
промываемого участка, ч
vi - скорость при промывке, м/с
|
Адрес
|
di
|
Li
|
Wдкрi
|
К1 и К2
принимаются по опыту эксплуатации, при отсутствии
данных допускается К1 и К2
принимать соответственно 2 и 10. При
известной продолжительности
пропуска воды для
дезинфекции расчет
должен выполняться
по продолжительности при Vi=1 м/с
|
|
|
…
|
…
|
…
|
…
|
|
|
Сумма Wдкрi
|
|
|
1.1.6
|
Промывка новых водопроводных
сетей
|
Wпрн=2800Sdi2viti
vi - скорость при промывке, м/с;
di - диаметр i-го
промываемого участка, м;
ti - продолжительность промывки i-го
промываемого участка, ч
|
Адрес
|
di
|
ti
|
Wпрнi
|
Продолжительность промывки принимается по опыту эксплуатации, но не менее
1 ч. Рекомендуется
водяная промывка. Скорость при
водяной промывке 1-1,5 м/с
|
|
|
…
|
…
|
…
|
…
|
|
|
Сумма Wпрнi
|
|
|
1.1.7
|
Дезинфекция
новых водопроводных сетей
|
Wдн=0,785Sdi2Li+(К1+К2)
di - диаметр i-го
промываемого участка, м;
Li - протяженность i-го
промываемого участка, м;
К1 и К2
- коэффициенты, учитывающие необходимое увеличение объема воды на дезинфекцию
и промывку для достижения концентраций хлорной воды в наиболее удаленной
точке участка трубопровода, составляющих по СНиП
3.05.04-85*не менее 0,3
г/м3 остаточного хлора в
промывной воде.
Или при известной продолжительности дезинфекции:
Wднi=1,57Sdi2Li+0,785Sdi2tivi
ti - продолжительность дезинфекции i-го
промываемого участка, ч
vi - скорость при промывке, м/с
|
Адрес
|
di
|
Li
|
Wднi
|
К1 и К2
принимаются соответственно 2 и 10,
при известной продолжительности пропуска воды для дезинфекции допускается
расчет по продолжительности.
|
|
|
…
|
…
|
…
|
…
|
|
|
Сумма Wдн
|
|
|
1.2
|
Собственные нужды насосных станций
|
Wнс=SWнсi
Wнсi - расходы на охлаждение подшипников, уплотнение сальников и т.д.
|
Станция
|
Wнсi
|
На основании инструкции по эксплуатации
|
|
|
…
|
…
|
|
|
Сумма Wнсi
|
|
|
|
1.3
|
Чистка резервуаров
|
WР=2Svi
vi - объем i-го
промываемого резервуара, м3
|
Резервуар
|
WРi
|
На основании опыта эксплуатации полный объем воды на смыв
осадка, промывку и дезинфекцию резервуара принимается равным удвоенному
объему резервуара
|
|
|
…
|
…
|
|
|
Сумма WРi
|
|
|
1.4
|
Технологические нужды эксплуатации сети водоотведения
(промывка и прочистка сетей)
|
WКi=2800Sdi2viti
vi - скорость при промывке, м/с;
di - диаметр i-го
промываемого участка, м;
ti - продолжительность промывки i-го
промываемого участка, ч
|
di
|
vi
|
ti
|
WКi
|
Продолжительность
промывки принимается по фактическим данным. Скорость принимается в
зависимости от способа промывки: при
водяной промывке - 1-1,5 м/с, при
гидромеханической или гидропневматической промывке - 1,5-3 м/с
|
|
|
…
|
…
|
…
|
…
|
|
|
Сумма WКi
|
|
|
1.5
|
Расходы на противопожарные
нужды, в т.ч.
|
Сумма объемов воды W(1.5) п.
1.5.1 и п. 1.5.2
|
|
|
|
|
1.5.1
|
Тушение
пожаров
|
WПОЖ=miW+3,6S(qi´ni´ti)
mi - количество автоцистерн, ед.;
W -
вместимость автоцистерны, м3;
qi - расходы воды, л/с, на 1 ствол при тушении
пожара из гидрантов, на 1 пожарный кран или на 1 систему автоматического
пожаротушения;
ni - количество задействованных гидрантов,
кранов или систем автоматического пожаротушения;
ti - продолжительность действия гидрантов,
кранов или систем автоматического пожаротушения, ч
|
mi
|
W
|
ni
|
qi
|
ti
|
Параметры mi, W, ni, ti принимаются по данным
государственной противопожарной службы, при отсутствии данных допускается
принимать продолжительность действия ti=3 ч
|
|
|
…
|
…
|
…
|
…
|
…
|
|
|
Сумма WПОЖ
|
|
|
1.5.2
|
Проверка пожарных
гидрантов на водоотдачу
|
WПГ=3,6S(qi´ni´ti)
qi - расходы воды, л/с, на 1 пожарный
гидрант;
ni - количество задействованных гидрантов;
ti - продолжительность действия гидрантов,
ч
|
n
|
Сумма WПГ
|
Расход воды на 1 пожарный
гидрант qi=15 л/с. Продолжительность действия гидрантов принимается по фактическим данным, при отсутствии данных допускается принимать продолжительность
действия t=0,12 ч
|
|
|
|
|
|
|
|
|
|
1.6
|
Расходы воды на потери специализированных организаций
городского хозяйства при отборе
воды на поливку
территорий автотранспортом, возникающие по причине повреждений заправочных
устройств и нарушения правил пользования
|
W(1.6)=WПол=3,6´24´d(q´n´t)
d - потери воды при заправке, в долях ед.;
q - расход
воды заправочным
пунктом, л/с;
n -
количество пунктов заправки;
t - продолжительность
заправки в сут.
|
n
|
t
|
Сумма WПол
|
Потери воды при заправке
принимаются по фактическим данным.
При отсутствии данных
допускается принимать
на основании опыта эксплуатации заправочных систем t=0,2
|
|
|
|
|
|
|
|
|
|
|
2
|
Организационно-учетные
расходы
|
Сумма объемов воды W(2) с п.
2.1 по п. 2.2
|
|
|
|
|
2.1
|
Расходы, не зарегистрированные
средствами измерений (расходы ниже порога чувствительности)
|
Wпор=Sqпорi´ni´ti
qпорi - порог чувствительности средства
измерения i-го
калибра, м3/ч;
ni - число средств
измерения i-го калибра;
ti - число часов работы средства измерения
i-го
калибра с расходами ниже порога чувствительности.
|
Калибр,
мм
|
qпорi
|
ni
|
ti
|
Wпорi
|
Порог чувствительности
средства измерения принимается на основании паспортных данных
|
|
|
…
|
…
|
…
|
…
|
…
|
|
|
Сумма Wпорi
|
|
|
2.2
|
Неучтенные расходы воды вследствие погрешности средств
измерений
|
Сумма объемов воды W(2.2) с п.
2.2.1 по п.
2.2.2
|
|
|
|
|
2.2.1
|
Водопроводные станции
|
WПВС=SdiWВСi
dI - погрешность
измерения расхода, в долях ед.;
WВСi
- объем воды, поданный водопроводной станцией, м3
|
Станция
|
di
|
WПВСi
|
Погрешность измерения расхода принимается на основании
паспортных данных
|
|
|
|
|
|
|
|
Сумма
WПВСi
|
|
|
2.2.2
|
Абоненты
|
WПАб=dSWПАб
d
- погрешность измерения расхода, в долях ед.;
SWПАб
- суммарный объем воды, учтенный водомерами у
абонентов, м3
|
d
|
WПАб
|
Сумма
WПАб
|
При отсутствии данных
погрешность измерения расхода допускается
принимать дельта=0,015
|
|
|
|
|
|
|
|
|
|
|
3
|
Потери и утечки из водопроводной сети и емкостных сооружений, в
т.ч.
|
Сумма объемов воды W(3) с п.
3.1 по п. 3.5
|
|
|
|
|
3.1
|
Потери при повреждениях, в т.ч.
|
Сумма объемов воды W(3.1) с п.
3.1.1 по п. 3.1.3
|
|
|
|
|
3.1.1
|
- коррозионные свищи,
поврежденные стыки, сальники
|
WУСi=3600mtiwiÖ2gH=9600tiwiÖH
wI
- площадь живого сечения i-го
отверстия, м2;
H - средний напор воды в i трубопроводе на поврежденном
участке, м2;
ti - продолжительность утечки по
фактическим данным с момента заявки до локализации, ч;
m - коэффициент истечения, 0,6.
|
Адрес
|
wi
|
ti
|
WУСi
|
При отсутствии фактических данных о площади отверстия
допускается принимать Средний напор
допускается принимать
равным полусумме
напоров на выходе насосной станции и в концевой точке сети
|
|
|
…
|
…
|
…
|
…
|
|
|
Сумма
WУСi
|
|
|
3.1.2
|
- трещины в трубах
|
WУтрi=9600tiwiÖH
wI
- площадь живого сечения i-й
трещины, м2;
Hi - средний напор воды в трубопроводе на поврежденном участке, м2;
ti - продолжительность утечки по фактическим данным с момента
заявки до локализации, ч.
|
Адрес
|
wi
|
ti
|
WУтрi
|
При отсутствии фактических
данных о площади
отверстия допускается
принимать wi=0,05pd2i/4.
Средний напор допускается принимать равным полусумме напоров на выходе
насосной станции и в концевой точке сети
|
|
|
…
|
…
|
…
|
…
|
|
|
Сумма
WУтрi
|
|
|
3.1.3
|
-
переломы и разрывы труб
|
WУПi=9600tiwiÖH
wI
- площадь живого сечения i-й
отверстия, м2;
Hi - средний напор воды в трубопроводе на поврежденном участке,
принимаемый равным средней глубине заложения трубопровода, м2;
ti - продолжительность утечки по
фактическим данным с момента заявки до локализации, ч.
|
Адрес
|
wi
|
ti
|
WУПi
|
При отсутствии фактических
данных о площади
отверстия допускается
принимать wi=0,75pd2/4,
м2;
d - диаметр трубопровода, м
|
|
|
…
|
…
|
…
|
…
|
|
|
Сумма
WУПi
|
|
|
3.2
|
Опорожнение при
устранении переломов и трещин с
заменой трубы
|
Wоп=0,785Sdi2Li
di - диаметр i-го
опорожняемого участка, м;
Li - длина i-го опорожняемого
участка, м
|
Адрес
|
d
|
Li
|
Wопi
|
|
|
|
|
|
|
|
|
|
Сумма
Wопi
|
|
|
3.3
|
Скрытые утечки из
емкостных сооружений
(промежуточных резервуаров
на водопроводной сети) сверх
норм естественной убыли
|
WPi=DhFi/t-Wеi
Fi - площадь поверхности i-го
резервуара, м2;
Dh - снижение уровня воды в
резервуаре за время t;
Wеi - объем естественной
убыли воды из резервуара (приложение
2)
|
Резервуар
|
Fi
|
Dh/t
|
WPi
|
|
|
|
…
|
…
|
…
|
…
|
|
|
Сумма
WPi
|
|
|
3.4
|
Утечки через уплотнения
сетевой арматуры
|
Wa=dnqt
d
- доля арматуры, имеющей утечки, в долях
ед.;
n
- общее количество сетевой арматуры;
q
- средний расход при
утечке через уплотнения сетевой арматуры, м3/сут;
t
- календарное число сут за расчетный период
|
d
|
n
|
t
|
Сумма
Wa
|
При отсутствии фактических
данных средний расход при утечке
через уплотнения сетевой арматуры
допускается принимать q=4,3 м3/сут
|
|
|
|
|
|
|
|
|
|
|
|
3.5
|
Утечки через водоразборные
колонки
|
Wвк=dnqt
d
- доля водоразборных колонок, имеющих утечки, в
долях ед.;
n - общее количество водоразборных колонок;
q - средний расход при
утечке, м3/сут;
t - календарное число
суток за расчетный период
|
d
|
n
|
t
|
Сумма
Wвк
|
При отсутствии фактических
данных средний расход при утечке
через колонки допускается принимать q=21,6
м3/сут
|
|
|
|
|
|
|
|
|
|
|
|
4
|
Самовольное пользование
|
W(4)
Определяется на основании фактических данных за предыдущий период
|
|
В соответствии с Правилами
пользования системами коммунального водоснабжения и канализации в Российской
Федерации
|
|
|
5
|
Потери воды за счет
естественной убыли
|
W(5)
Определяется по приложению 2
|
|
|
|
|
6
|
Итого
|
W(6)
Сумма объемов воды W(1-5), п. 1, п. 2, п. 3,
п. 4 и п. 5
|
|
|
|
|
7
|
Скрытые утечки воды из
водопроводной сети
|
W(7)=qутLt,
qут - величина удельных скрытых
утечек воды из
водопроводной сети, м3/сут на 1 км сети;
L - длина водопроводной
сети, км;
t - календарное число
суток за расчетный период
|
qут
|
L
|
t
|
Сумма
W(7)
|
Величина удельных скрытых утечек воды из водопроводной
сети определяется экспериментальными
методами, приложение 4
|
|
|
|
|
|
|
|
|
|
|
|
8
|
Всего неучтенных расходов
и потерь воды
|
W(8)=W(П)-W(P)
W(П) - подача воды, м3 за расчетный период;
W(P) - реализация воды, м3 за расчетный период
|
|
|
|
|
9
|
Неучтенные потери и
утечки воды по невыясненным причинам
(не выявленное самовольное
пользование, погрешность
измерения расходов воды вследствие
неодновременности снятия показания
приборов, установленных
в узлах учета подачи и потребления
воды, погрешность
определения скрытых утечек и др.)
|
W(9)=W(8)-W(6)-W(7)
|
|
Определяется в случае, если известны скрытые утечки,
установленные экспериментально
|
|
|
10
|
Скрытые утечки,
неучтенные потери и
утечки воды по невыясненным причинам
|
W(10)=W(8)-W(6)
|
|
Определяется в случае, если скрытые утечки не установлены
экспериментально
|
|
|
|
|
|
|
|
|
|
|
|
|
|
|
|
|
|
|
|
|
|
|
|
|
|
|
|
|
|
|
|
|
Настоящий
документ устанавливает порядок расчета и нормы естественной убыли воды при
транспортировке, хранении и передаче абонентам.
Основание
для разработки: постановление Правительства РФ от 12.11.02 № 814 "О
порядке утверждения норм естественной убыли при хранении и транспортировке
товарно-материальных ценностей" (Собрание законодательства Российской
Федерации, 2002, № 46, ст. 4596).
Принятые
сокращения:
ВС
- водопроводная сеть;
ВОС
- водопроводные очистные сооружения;
НС
- насосная станция;
РЧВ
- резервуары чистой воды;
ВКХ
- водопроводно-канализационное хозяйство.
1.1.
Естественная убыль воды - это потери (уменьшение массы при сохранении качества в
пределах требований нормативных документов), являющиеся следствием
физико-химических свойств воды и воздействия метеорологических факторов при
транспортировке для передачи абонентам систем коммунального водоснабжения по
водопроводной сети.
1.2.
Нормы естественной убыли воды не распространяются на нецентрализованные системы
водоснабжения и системы привозного водоснабжения.
1.3.
К естественной убыли не относятся потери воды, вызванные нарушениями требований
стандартов, технических условий, правил технической эксплуатации и хранения,
последствиями стихийных бедствий, утечками воды при авариях, хищениями воды.
1.4.
Норма естественной убыли - это предельно допустимая величина безвозвратных
потерь воды, возникающих непосредственно при ее транспортировке и передаче
абонентам вследствие сопровождающих их физических процессов (просачивания через
поверхности, брызгоуноса и испарения).
1.5.
В норму естественной убыли включаются:
-
потери от просачивания воды при ее подаче по напорным трубопроводам ВС;
-
потери от просачивания воды при ее хранении в РЧВ, размещенных на ВС, при их
исправном техническом состоянии;
-
потери на брызгоунос (ветровой и капельный унос) и испарение воды при
эксплуатации фонтанов, установленных на ВС в случае, если фонтанные системы
имеют балансовую принадлежность организации ВКХ.
1.6.
Потери при просачивании воды принимаются на уровне, установленном действующими
нормами и правилами* для сооружений и трубопроводов, находящихся в исправном
техническом состоянии.
* - СНиП 3.05.04-85*
"Наружные сети и сооружения водоснабжения и канализации". Разработаны
НИИ ВОДГЕО Госстроя России. Утверждены постановлением Госстроя России от
31.05.85 № 73.
1.7.
Нормы естественной убыли воды при подаче по напорным трубопроводам ВС
установлены в килограммах в час на 1 км ВС.
1.8.
Нормы естественной убыли воды при хранении в РЧВ, размещенных на ВС,
устанавливаются в килограммах на 1 м2 смоченной поверхности РЧВ в
час.
1.9.
Нормы естественной убыли воды при эксплуатации фонтанов установлены в
килограммах на тонну воды, находящейся в оборотной системе фонтана в течение
часа.
2.1.
Нормы естественной убыли воды при подаче по напорным трубопроводам ВС на 1 км
водопроводной сети приведены в табл. 1.
Таблица
1
Нормы естественной убыли воды при подаче по напорным
трубопроводам ВС
|
Внутренний
диаметр трубопровода,
мм
|
Нормы
естественной убыли воды при подаче по напорным трубопроводам в килограммах на 1 км ВС за час
|
|
стальных
|
чугунных
|
асбестоцементных
|
железобетонных
|
|
100
|
16,8
|
42
|
-
|
-
|
|
125
|
21
|
54
|
-
|
-
|
|
150
|
25,2
|
63
|
-
|
-
|
|
200
|
33,6
|
84
|
118,8
|
120
|
|
250
|
42
|
93
|
133,2
|
132
|
|
300
|
51
|
102
|
145,2
|
144
|
|
350
|
54
|
108
|
157,2
|
156
|
|
400
|
60
|
117
|
168
|
168
|
|
450
|
63
|
126
|
177,6
|
180
|
|
500
|
66
|
132
|
188,4
|
192
|
|
600
|
72
|
144
|
-
|
204
|
|
700
|
78
|
153
|
-
|
222
|
|
800
|
81
|
162
|
-
|
234
|
|
900
|
87
|
174
|
-
|
252
|
|
1000
|
90
|
180
|
-
|
264
|
|
1100
|
93
|
-
|
-
|
276
|
|
1200
|
99
|
-
|
-
|
288
|
|
1400
|
105
|
-
|
-
|
300
|
|
1600
|
111
|
-
|
-
|
312
|
|
1800
|
117
|
-
|
-
|
372
|
|
2000
|
126
|
-
|
|
414
|
Примечание.
Для чугунных трубопроводов со стыковыми
соединениями на резиновых уплотнителях норму естественной убыли воды следует
принимать с коэффициентом 0,7.
Для трубопроводов из
ПВД и ПНД со сварными соединениями и трубопроводов из ПВХ с клеевыми
соединениями норму естественной убыли воды следует принимать как для стальных
трубопроводов, определяя этот расход интерполяцией по величине внутреннего
диаметра.
Для
трубопроводов из ПВХ с соединениями на резиновых манжетах норму естественной
убыли воды следует принимать как для чугунных трубопроводов с такими же
соединениями, эквивалентных по величине наружного диаметра, определяя этот
расход интерполяцией.
2.2. Нормы естественной убыли воды при хранении в РЧВ,
размещенных на ВС, принимаются 0,125 кг на 1 м2 смоченной поверхности
РЧВ в час (см. п. 7.33 СНиП 3.05.04-85*).
2.3.
Естественную убыль на испарение при хранении в РЧВ учитывать не следует.
2.4. Нормы естественной убыли воды на ветровой
и капельный унос при эксплуатации фонтанов принимаются 20 кг на 1 м3
воды, находящейся в оборотной системе фонтана в течение часа.
2.5.
Нормы естественной убыли воды на испарение при эксплуатации фонтанов принимаются
в зависимости от среднемесячной температуры наружного воздуха по табл. 2.
Таблица
2
Нормы естественной убыли воды на
испарение при эксплуатации фонтанов в килограммах на 1 м3 воды,
находящейся в оборотной системе фонтана в течение часа
|
Температура
воздуха, °С
|
0
|
10
|
20
|
30
|
|
Норма, кг/м3ч
|
1
|
1,2
|
1,4
|
1,5
|
Примечание.
При промежуточных значениях среднемесячной температуры наружного воздуха норма
естественной убыли воды на испарение определяется интерполяцией.
3.1.
Естественная убыль при транспортировке воды для передачи абонентам определяется
по формуле:
(1)
где:
li - протяженность i-го участка ВС
постоянного диаметра и материала, км;
ni - норма естественной убыли, кг/км ч,
определяемая по табл.
1;
t - продолжительность расчетного периода,
ч;
N - количество участков ВС постоянного
диаметра и материала.
3.2.
Естественная убыль воды при хранении в РЧВ, размещенных на ВС, определяется по
формуле:
(2)
где:
Fi - площадь смоченной поверхности i-го
РЧВ. Площадь смоченной поверхности определяется при наполнении резервуара до
половины рабочей глубины;
0,125
- норма естественной убыли воды при хранении в РЧВ, кг/м2 ч, см. п.
2.2;
t - продолжительность работы i-го
РЧВ за расчетный период, ч;
N - количество РЧВ.
3.3.
Естественная убыль воды на ветровой и капельный унос при эксплуатации фонтанов
определяется по формуле:
(3)
где:
Qi - объем воды в оборотной системе
фонтана, м3;
qИсп - норма естественной убыли на ветровой и
капельный унос, кг/м3 ч, см. п.
2.4;
t - продолжительность работы i-го
фонтана за расчетный период, ч;
N - количество фонтанов.
3.4.
Естественная убыль воды на испарение при эксплуатации фонтанов определяется по
формуле:

(4)
где:
Qi - объем воды в оборотной системе фонтана,
м3;
qИсп - норма естественной убыли на испарение,
кг/м3 ч, см. табл.
2;
t - продолжительность работы i-го
фонтана за расчетный период, ч;
N - количество фонтанов.
Для
изучения состояния водопроводной сети, режима ее работы и выявления скрытых
утечек воды проводятся следующие виды обследований и измерений на водопроводной
сети, результаты которых используются при оценке объемов скрытых утечек (приложение
4):
-
измерение расходов и напоров на определенных участках сети;
-
телевизионный контроль внутреннего состояния трубопроводов;
-
проведение манометрической съемки водопроводной сети;
-
определение повреждений на водопроводной сети.
1. Телевизионный контроль
Проводится
с целью выявления внутреннего состояния трубопроводов, составления паспортов
(дефектных карточек) технического состояния водопроводных сетей, определения
качества выполнения строительно-монтажных работ при прокладке новых и
реконструированных трубопроводов.
2. Манометрическая съемка водопроводной
сети
Манометрическая
съемка проводится с целью выявления участков с повышенным сопротивлением,
определения напоров у потребителей и оптимизации режима работы водопроводной
сети. Манометрическая съемка позволяет также обнаружить нарушения и сбои в
работе водопроводной сети, вызванные, например, авариями на сети. Для
проведения съемки в диктующих контрольных точках сети устанавливаются
манометры, показания которых фиксируются одновременно в определенное время суток
и заносятся в компьютер. Первичные манометры могут быть снабжены накопителями
информации, которые позволяют непрерывно записывать и анализировать первичные
данные в течение заданного срока (до 10 дней).
3. Определение мест повреждений на
водопроводной сети
Производится
путем фиксирования места возникновения акустических сигналов, которые возникают
при истечении воды при повреждении напорных трубопроводов (свищ, расстыковка,
трещина и др.). Применяются акустические и электронно-акустические способы определения
мест повреждений напорных трубопроводов:
-
способ акустического поточечного прослушивания с поверхности земли трассы
водопровода. Прослушивание трассы проводится через каждые 1-3 м с помощью
геомикрофонов. Результаты измерений заносятся в память прибора, по которым и
определяется место повреждения;
-
корреляционный способ поиска скрытых повреждений заключается в том, что
акустические сигналы, наведенные повреждением трубопровода, преобразуются в
электрические сигналы и передаются в усилитель прибора-коррелятора. На
корреляционный блок подаются радиосигналы от двух усилителей (излучателей),
расположенных в начале и конце исследуемого участка. Коррелятор производит
обработку поступающих данных и вычисляет расстояние от места утечки до
ближайшего излучателя по формуле:
где:
D - длина исследуемого участка;
V - скорость распространения звука в воде;
Dt - разница во времени распространения звука от места утечки
до каждого излучателя;
-
электронно-акустический способ с датчиками шума (например, Permalog и др.).
Электронно-акустический
способ позволяет определять возможные утечки на водопроводных сетях большой
протяженности. Комплект приборов состоит из датчиков (регистраторов) и
приемника. Датчики фиксируют место появления и интенсивность шума на
водопроводной сети. Чувствительность регистратора, исходя из уровня
чувствительности, не превышает 250 м, в связи с этим для обследования района
необходимо расставлять систему датчиков, распределяя их согласно топологии
водопроводной сети. Приемник сигналов устанавливается в автомобиле, служит для
автоматического считывания показаний с ближайших датчиков посредством
радиосвязи. Точное место утечки впоследствии определяют с помощью акустического
коррелятора. Таким образом, за малый промежуток времени можно обследовать
большие участки водопроводных сетей.
В
процессе регистрации датчиком фиксируется интенсивность шума (рис. 1), а также
количество записей (N) для каждой интенсивности шума.

Рис. 1
Пример 2-часового периода регистрации интенсивности шума водопроводной сети
Результаты
измерений преобразуются в виде интегрированного графика - профиля шума (рис.
2). По основным параметрам графика - величине интенсивности шума (I) и
ширине полосы шума (Sp) - определяется значимость утечки.

Рис. 2
Профиль шума с основными характеристиками
Полученные
результаты измерений заносятся в банк данных для последующего анализа и
проведения работ по ликвидации повреждений напорных трубопроводов.
Для
определения объемов скрытых утечек применяются:
-
расчетно-аналитический метод (приложение
1);
-
инструментально-статистические (экспериментальные) методы;
-
комплексный метод, объединяющий предыдущие методы.
К
инструментально-статистическим (экспериментальным) методам определения объемов
скрытых утечек на водопроводной сети относятся:
- метод,
основанный на экспериментальном определении суммарной площади отверстий
трубопровода;
-
зональный метод измерений объемов скрытых утечек без отключения потребителей
("открытый");
-
зональный метод измерений объемов скрытых утечек с отключением потребителей
("закрытый");
- метод,
основанный на результатах непрерывного измерения расходов и напоров воды с
выделением периода ночных расходов.
1. Метод, основанный на экспериментальном
определении суммарной площади отверстий трубопровода
Суммарную
площадь отверстий на исследуемом участке трубопровода можно определить путем
замера их площади при раскопках скрытых течей, обнаруженных при обследовании
сети корреляционными приборами (см. приложение
3), либо по результатам телевизионного обследования внутреннего состояния
трубопроводов. Объемы скрытых утечек трубопровода в этом случае определяются
следующим образом:
или
где:
qут - объем скрытых утечек на исследуемом участке
трубопровода;
Sw -
суммарная площадь живого сечения всех обнаруженных отверстий на участке;
m - коэффициент, равный 0,6;
H - средний напор воды в трубопроводе на обследованном
участке;
t - время, ч.
2. Зональный метод измерений объемов
скрытых утечек без отключения потребителей ("открытый")
Зональные
методы измерений объемов скрытых утечек требуют предварительного изучения
работы выбранных участков водопроводной сети в следующей последовательности:
-
производится расчет объемов водопотребления отдельных зон водоснабжения на
водопроводной сети (с населением от 30000 до 300000 человек). Для малых
населенных пунктов размеры зон определяются из условия, что их общее количество
должно быть не менее 3 при примерно равной численности населения в каждой зоне;
-
определяется объем неучтенных расходов и потерь воды расчетно-аналитическим
методом как разность подачи воды в зону и ее потребление абонентами;
- на
основе предварительных расчетов для дальнейшего проведения работ по измерению
утечек выбираются зоны водоснабжения с относительно высоким уровнем дисбаланса
между подачей и реализацией воды;
- внутри
намеченных зон водоснабжения выбирается ряд участков зональных измерений (УЗИ)
с населением от 3000 до 10000 человек.
При
выборе участка для организации зональных измерений учитываются следующие
факторы:
-
наличие на участке достаточного количества исправных приборов учета для
измерения водопотребления;
-
относительно высокая удельная аварийность на сетях и вводах в дома;
-
минимальное количество задвижек, которые необходимо закрыть для изолирования
зоны.
Участок
зональных измерений на время производства замеров изолируется от остальной
части водопроводной сети закрытием задвижек. Вода может поступать в зону сети
через один или несколько питающих вводов, оборудованных расходомерами. Схема
применения зонального метода измерений объемов скрытых утечек без отключения
потребителей показана на рис.
1.

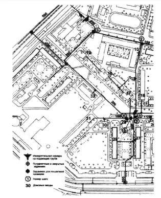
Рис.1
Зональный метод измерения скрытых утечек на водопроводной сети без отключения
потребителей (открытый)
Работы
выполняются в следующей последовательности.
1. Составляется схема участка зональных
измерений, на которой в масштабе 1:500 или 1:2000 наносятся водопроводные сети,
гидранты, запорная арматура, измерительные камеры и потребители.
2.
Заполняется паспорт участка зональных измерений, включающий:
-
сведения о потребителях (степень благоустройства, вид системы горячего
водоснабжения, этажность домов, количество жителей в домах);
-
описание водопроводной сети (ведомость водопроводных труб с указанием
материала, диаметра и года прокладки и итоговой общей протяженности труб в
пределах зоны измерений).
3.
Проводятся обследование и подготовка сети, включающие:
-
выявление и устранение всех видимых утечек;
-
пробную изоляцию измерительной зоны и проверку отсутствия притока в нее воды
через отключающую арматуру с ремонтом или заменой негерметичных задвижек;
-
проверку пригодности узлов учета потребления воды у всех абонентов, входящих в
зону измерений, для выполнения измерений.
4.
Оборудуется измерительная камера на питающем вводе участка зональных измерений
(одна или несколько).
5.
Выполняется измерение притока воды в зону измерений.
6. Выполняются одновременно измерения
потребления воды у всех входящих в зону абонентов. При необходимости
используется оборудование для автоматического считывания показаний.
7.
Проводится обработка результатов - определение расхода воды в единицу времени и
удельного расхода (на 1 км сетей участка зональных измерений).
8. Объем
скрытых утечек определяется как разность показаний расходомеров, установленных
на питающих вводах зоны, и расходомеров, установленных на абонентских вводах,
за один и тот же промежуток времени.
9. По мере накопления данных, полученных в
различных районах города, отличающихся состоянием и параметрами трубопроводов,
строятся регрессионные зависимости, позволяющие определить удельную величину
скрытой утечки в зависимости от года прокладки, материала и диаметра труб, а
также от интенсивности проведения работ по ремонту сети.
3. Зональный метод измерений объемов
скрытых утечек с отключением потребителей ("закрытый")
Отличается
от предыдущего метода тем, что на период измерений от сети отключаются все
потребители воды в выбранной "закрытой" зоне. Обычно измерения
производятся в ночное время, когда могут быть закрыты задвижки на домовых
вводах. Величина скрытых утечек определяется по показаниям расходомеров,
установленных на питающих вводах зоны.
Определение
величины скрытых утечек в зоне измерений с отключением потребителей является
наиболее точным. Недостатком метода являются его трудоемкость и временные
неудобства для потребителей.
Работы
по составлению схемы и паспорта зоны измерений, подготовки сети к проведению
измерений выполняются в той же последовательности (п.п.
1-9),
что и предыдущим способом, за исключением п.
6.
Дополнительно
проводятся работы по отключению абонентов. Эти работы следует, по возможности,
выполнять в ночное время с минимальными неудобствами для потребителей, их
оповещением и всеми установленными согласованиями на выполнение временного
отключения.
Для
экспериментальной оценки влияния интенсивности проведения ремонтов сети на
величину скрытых утечек в выбранных зонах проводятся повторные измерения.
Результаты этих измерений могут быть использованы в дальнейшем для планирования
объемов первоочередных работ по ремонту сетей, приводящих к существенному
снижению утечек воды. Характер зависимости между интенсивностью проведения
ремонтов сети и величиной скрытых утечек представлен на рис. 2.

Рис. 2
Общий вид зависимости величины утечек от доли капитально отремонтированных
водопроводных сетей: 1 - частота появления утечек, % от общей подачи;
2 - интенсивность восстановления сети, % от общей протяженности сети
4. Определение объемов скрытых утечек на
основании измерений ночных расходов
Метод
допускается к применению для измерения расходов воды, поступающей в отдельные
районы города, предприятия, домовладения. Метод основывается на разработках НИИ
КВОВ и опыте отечественных и зарубежных предприятий ВКХ.
4.1.
Оборудование и измерения
Для
применения метода определения скрытых утечек на основании замеров ночных
расходов водосчетчики, установленные на повысительных насосных станциях,
водопроводных вводах на предприятия, в отдельные здания, следует дополнительно
укомплектовать узлом импульсного выхода, соединенного с приборами накопления
информации. Они предназначены для сбора, обработки, хранения и передачи на
компьютер данных, полученных со счетчиков с узлом импульсного выхода.
Электронная структура прибора устроена на базе микропроцессора, который для
каждого полученного потока импульсов рассчитывает мгновенный расход и сохраняет
его в хронологической последовательности.
Определение
расхода воды в заданных параметрах производится автоматически пересчетом по
формуле:
где: n
- количество импульсов за установленный период времени;
P
- значимость (вес) импульса, задается при установке прибора;
T
- количество входных оптических считываний;
N - частота считываний и обработки входной
информации оптических или других импульсов (по паспорту прибора, например, для
приборов "CURCA", "DEBIDOS" частота считываний составляет
31,25 мс).
В ходе
измерений определяются:
-
среднечасовые расходы воды в течение всего периода измерений (не менее 7
суток);
-
минимальные и максимальные часовые расходы воды за период измерений;
-
количество потребленной воды за каждый промежуток времени определения расхода;
-
мгновенные минимальные и максимальные расходы потребляемой воды за определенный
промежуток времени. Параллельно выполняются измерения напора на сети (в точках
измерения расхода). Примеры замеров приведены на рис. 3.

Рис.
3
Часовой график подачи воды по дням недели (с мгновенным минимальным и
максимальным расходом) на повысительной насосной станции
4.2. Определение утечек в зданиях
На основании
замеров ночных расходов допускается определять утечки в жилых, общественных и
производственных зданиях при отсутствии ночного водопотребления.
Величина
потерь (утечек) воды qут определяется по минимальному
(мгновенному) ночному расходу воды и данным о напорах в дневное и ночное время,
по формуле:
(1)
где: qноч
- минимальный (мгновенный) ночной расход воды, м3/ч;
K
- эмпирический коэффициент, равный 0,85;
Hэф.дн - эффективный напор в дневное время;
Hэф.н - эффективный напор в ночное время (с 1
до 5 ч).
Для
жилых домов вычисляется удельная величина ночного расхода и утечки на одного
жителя qж.ноч и qж.ут. По мере
накопления информации устанавливаются статистически достоверные показатели qж.ноч
и qж.ут для групп жилых домов, отличающихся степенью
благоустройства, плотностью заселения квартир, формой собственности и другими
факторами, определяемыми с учетом местных условий (см. приложение
5*).
Пример
результатов измерений расходов и напоров данным способом на вводе в здание
показан на рис. 4.

Рис.
4
Пример результатов измерений расходов и напора на вводе в здание
4.3.
Определение скрытых утечек в отдельных районах (зонах водоснабжения)
Работы
выполняются в следующей последовательности:
-
выбирается изолированный район города (зона водоснабжения), общая подача в
которых известна и определяется приборами с записью мгновенных показаний;
- на
основе периода измерений не менее 7 суток определяется мгновенный ночной расход
зоны водоснабжения qз.ноч;
-
определяются общие ночные утечки в жилых домах:
(2)
где: Nж
- количество жителей в зоне водоснабжения.
Величина
qж.ноч устанавливается по статистически достоверной выборке
домов (см. п. 4.2), принятой
для системы коммунального водоснабжения;
- на
основе замеров или обработки статистических данных о водопотреблении находятся
ночные расходы прочих абонентов, сумма qпа.ноч;
-
скрытая утечка в ночное время рассчитывается на основании равенства:
(3)
-
суточная скрытая утечка определяется по формуле
(1), в которой вместо ночной утечки здания qут.ноч
используется скрытая утечка в ночное время по всей зоне водоснабжения сумма qут.ноч;
- на
основе скрытой суточной утечки и протяженности трубопроводов в зоне водоснабжения
рассчитывается удельная скрытая утечка на 1 км водопроводной сети.
5. Комплексный способ определения
величины скрытых утечек
Комплексный
способ подразумевает, как правило, поэтапное проведение изучения и оценки
величин скрытых утечек.
Вначале
производится оценка величин неучтенных расходов и утечек воды
расчетно-аналитическим способом. На основе проведенного анализа выбираются
наиболее неблагоприятные участки водопроводной сети, имеющие наибольшие объемы
утечек. На них проводятся подготовительные работы по обнаружению и ликвидации
наиболее крупных утечек. Затем в этой зоне производится экспериментальное
измерение величины скрытых утечек, применяется открытый или закрытый способ
УЗИ.
Накапливаются
и обрабатываются данные о ночных расходах воды, насосные станции оборудуются
расходомерами с накопителями мгновенных расходов. Выполняется определение
объемов скрытых утечек на основании определения ночных расходов в зонах
водоснабжения.
Все
измерения периодически повторяются. Мониторинг на основании ночных расходов в
зонах водоснабжения, обслуживаемых повысительными станциями, может выполняться
непрерывно.
Комплексный
метод является наиболее точным, так как позволяет продублировать определение
изучаемых показателей разными способами и уменьшить ошибки в оценке
показателей.
1. Цель и задачи работы:
- Определение фактических объемов
неучтенных расходов в системе подачи и распределения
воды Санкт-Петербурга;
- Определение фактических объемов потерь
воды в системе подачи и распределения воды Санкт-Петербурга;
- Определение фактического уровня
водопотребления в жилищном фонде Санкт- Петербурга;
- Оценка удельного водопотребления в
жилищном фонде Санкт-Петербурга;
- Оценка неучтенных расходов и потерь
воды в системе подачи и распределения воды Санкт-Петербурга;
- Разработка проектов норм потерь и
неучтенных расходов воды в системе подачи и распределения воды Санкт-Петербурга и рациональных норм
водопотребления в жилищном фонде;
- Разработка мероприятий по сокращению
потерь водопроводной воды.
2. Краткая характеристика
водопотребления Санкт-Петербурга
Общая протяженность водопроводной сети
города - 6216 км.
Данные об изменениях среднесуточного
водопотребления Санкт-Петербурга по годам (в период 1995-2003 гг.) и годовых
коэффициентов неравномерности приведены на рис. 1, 2.

Рис. 1.
Изменение среднесуточного водопотребления Санкт-Петербурга за период
1995-2003 гг.

Рис. 2.
Распределение коэффициентов месячной
неравномерности водопотребления Санкт-Петербурга
Характеристика водопроводной сети Санкт-Петербурга
по возрасту показана на рис. 3.

Рис. 3.
Характеристика водопроводных сетей Санкт-Петербурга по годам ввода в
эксплуатацию
Характер повреждений при авариях на
водопроводной сети показан на рис. 4.

Рис. 4.
Классификация аварий на водопроводных сетях (по характеру повреждений)
3. Изучение и оценка
фактических объемов неучтенных расходов и потерь воды в системе подачи и
распределения воды Санкт-Петербурга
3.1. Общие объемы неучтенных расходов и
потерь воды
Для изучения и оценки объемов неучтенных
расходов и потерь воды, в том числе скрытых утечек, были применены
расчетно-аналитический и экспериментальные методы. Общий объем неучтенных
расходов и потерь воды определялся сравнением данных о подаче воды
водопроводными станциями и объемов реализованной воды. Для получения данных о
величинах утечек в системе подачи и распределения водопроводной воды были
проведены комплексные исследования подачи и потребления воды методом зональных
измерений. Изучалось также водопотребление в жилом фонде, в домах по всем
районам города, в том числе по домовладениям, входящим в зоны измерений на
наружной водопроводной сети.
Анализ полученных данных показал наличие
четкой взаимосвязи между объемом потерь воды и числом аварий на водопроводной
сети (рис. 5).

Рис. 5.
Изменение объема потерь воды и аварий на водопроводной распределительной сети
Санкт-Петербурга
Тесная связь получена также между объемом
потерь воды в сети и потоком отказов, определяемым как годовое количество
аварий, отнесенное к общей протяженности сети (рис. 6).

Рис. 6.
Зависимость объема потерь воды от потока отказов на
водопроводной сети Санкт-Петербурга (--------доверительный интервал при P=0,95).
Статистическая обработка этих данных
позволила получить зависимость между величиной удельных объемов потерь воды qпот и
потоком отказов l на
водопроводной сети Санкт-Петербурга в виде уравнения (1):
qпот = -4,04+20,71l, (1)
где: qпот - величина удельных объемов потерь воды,
м3/час×км,
l - поток отказов на сети, число аварий/км×год.
Примерно в таком же виде была получена
зависимость для водопроводных сетей Москвы [25]:
qпот = 17,5l (2)
3.2. Определение объема скрытых утечек
Для получения данных о величинах скрытых
утечек в системе подачи и распределения водопроводной воды были проведены комплексные
исследования подачи и потребления воды методом зональных измерений (УЗИ)
открытым (УЗИ-4) и закрытым (УЗИ-5) способами. Зональные измерения проводились
на Васильевском острове Санкт-Петербурга, а также
в других районах, в том числе в Сестрорецке. Исследования на Васильевском
острове были выполнены работниками ГУП "Водоканал Санкт-Петербурга"
совместно с датской кампанией "Крюгер инж. Консалт" [4].
Методика проведения исследований дана в приложении 4.
Для проведения исследований были выбраны
следующие участки зональных измерений (УЗИ):
УЗИ-4 - включал жилые дома застройки 50-х
и 60-х годов высотой до 9 этажей. Население - 5510 человек, длина сети - 2,66
км.
УЗИ-5 - включал жилые дома застройки 70-х
годов высотой до 16 этажей. Население - 7140 человек, длина сети - 1,96 км.
Предварительно на этих участках были
проведены следующие подготовительные работы:
- Подготовка
участков, проверка задвижек на плотность закрытия и замена обнаруженных
ненадежных задвижек;
- Устройство узлов
измерения подачи воды через подающую трубу на участок измерений;
- Изучение водопотребления на выбранных
участках по показаниям водомеров (у абонентов).
Участки зональных измерений были отделены
от водопроводной сети города посредством закрытия задвижек так, чтобы каждый
участок снабжался водой через одну питающую линию (рис. 7, 8). До измерения
утечек участки были перекрыты задвижками, и плотность закрытия задвижек была
проверена с помощью стетоскопов.

Рис. 7.
Схема зоны измерений скрытых утечек воды (УЗИ-4)

Рис. 8.
Схема зоны измерений скрытых утечек воды (УЗИ-5)
На питающей линии устанавливался
расходомер вставляемого типа с накопителем данных для записи суточных вариаций
подачи воды на участок.
Одновременно записывалось давление на
входе УЗИ с помощью регистратора давления с накопителем данных.
В зоне УЗИ-4 исследования уровня утечек
проводились без отключения водопотребителей, т.е. "открытым"
способом. Схема зоны измерений дана на рис. 7.
В зоне УЗИ-5 исследования проводились
"закрытым" способом, водопотребители на период измерений расходов
отключались путем перекрытия задвижек на домовых вводах. Зона включала участок
площадью 17 га. Водоснабжение до 8 этажей включительно осуществлялось от
низконапорной сети, остальные этажи снабжались от высоконапорной сети.
Измерительная зона охватывала только низконапорную сеть.
Схема зоны измерений приведена на рис. 8.
Для каждого УЗИ была проведена пошаговая проверка участков трубопроводов на
утечки. Пошаговая проверка проводилась в ночное время (обычно с 2-х часов).
Задвижки закрывались последовательно в порядке, указанном на рис. 7, 8.
Интервал между закрытием задвижек составлял 10-20 минут. Через 15 минут после
закрытия последней задвижки для пошаговой проверки они открываются снова. Время
закрытия и открытия задвижек фиксировалось. По этим данным рассчитывался
уровень утечек для каждого участка труб, ограниченного задвижками, определены
критические трубы с относительно высоким уровнем утечек.
Измерения проводились с помощью
следующего измерительного оборудования: расходомеры механического типа
"Квадрина" (2 шт.), расходомеры
электромагнитного типа "Аквапроб", (2 шт.), накладные ультразвуковые
расходомеры "Флюксус" (2 шт.), 14 регистраторов давления. Комплект
оборудования также включал накопители данных для всех измерительных приборов.
При проведении измерений открытым
способом - без отключения водопотребителей - (УЗИ-4) одновременно проводилось
изучение водопотребления на выбранных участках по показаниям водомеров у
абонентов.
Результаты измерений по участкам
выбранных зон приведены в табл. 1 и 2.
Таблица 1.
Сводные данные
по водопотреблению
|
Зона
|
Кол-во домовых вводов
|
Процент центрального горячего водоснабжения
|
Среднее потребление, л/чел. сутки
|
Среднее ночное потребление, л/чел. час
|
|
УЗИ-4
|
32
|
0
|
244
|
5,9
|
|
УЗИ-5
|
14
|
100
|
198
|
4,7
|
Таблица 2.
Результаты
измерения утечек
|
Показатели
|
Ед.изм.
|
УЗИ-4
|
УЗИ-5
|
|
Население
|
Чел.
|
5510
|
7140
|
|
Длина
сети
|
Км
|
2660
|
1960
|
|
Удельное
ночное потребление
|
л/чел·час
|
5,9
|
4,7
|
|
Общее ночное потребление
|
л/с
|
9,03
|
-
|
|
Измеренная ночная подача воды
|
л/с
|
9,93
|
|
|
Уровень утечек на УЗИ
|
л/с
|
0,9
|
0,8
|
|
Удельная величина утечек
|
м3/час·км
|
1,22
|
1,47
|
|
Удельная величина утечек
|
м3/сутки·км
|
29,2
|
35,3
|
Полученные величины
утечек на распределительной водопроводной сети составляли 29,2-35,3 м3/сутки на 1 км сети,
или 5,8-7,06% (в среднем 6,43%) от общего водопотребления.
После проведения
этих измерений на участке УЗИ-5 было выполнено обследование сети акустическими логгерами, выявлены и
устранены скрытые утечки с выполнением капитального
ремонта около 200 м трубопроводов, т.е. 10% наиболее изношенных участков трубопроводов.
Затем в этой же зоне были проведены повторные измерения величины утечек.
Результаты этих измерений приведены в табл. 3.
Таблица 3.
Результаты
повторных измерений в зоне УЗИ-5 после проведения ремонтных работ
|
Дата измерений
|
Величина скрытой утечки
|
|
м3/ч
|
м3/сут на км
|
л/сут на чел
|
м3/ч на ввод
|
|
2003 г.
|
0,48
|
5,88
|
2,82
|
0,03
|
Как показывали результаты измерений,
выявление скрытых утечек и проведение капитального ремонта по их устранению (примерно
10% трубопроводов) позволило сократить объем утечек воды на 83%. Достигнутый в
результате этого уровень скрытых утечек - 5,88
м3/сут.км соответствует европейскому уровню утечек на коммунальных водопроводных сетях (5-10 м3/сут на км). Таким образом, для условий г.
С-Петербурга можно считать перспективным
объем проведения капитального ремонта
10% трубопроводов водопроводных сетей, что приблизит их состояние по величине утечек к
европейскому уровню.
4. Обобщающая оценка неучтенных
расходов и потерь воды в СПиРВ Санкт-Петербурга
Сводные результаты оценки неучтенных
расходов и потерь воды в СПиРВ Санкт-Петербурга, полученные на основании
изучения и анализа данных за 2001 год, приведены в табл. 4.
Таблица
4.
Сводные результаты
оценки неучтенных расходов и потерь воды в СПиРВ Санкт-Петербурга (2001 год)
|
Неучтенные расходы и потери воды
|
|
|
Всего
|
18,43%
|
|
Полезные неучтенные расходы
|
4,63-10,63%
|
|
В том числе:
|
|
|
-
Промывка сетей и тупиков
|
0,109%
|
|
-
Собственные нужды водопроводных п/станций
|
0,0037%
|
|
-
Чистка резервуаров п/станций
|
0,035%
|
|
-
Технологические нужды
|
0,007%
|
|
-
Спецтранс
|
0,044%
|
|
-
Реализовано абонентами без договора
|
0,394%
|
|
-
Тушение пожаров
|
0,0166%
|
|
-
Проверка пожарных гидрантов
|
0,092%
|
|
- Погрешность приборов учета водопроводных станций
|
2,1%
|
|
-
Погрешность приборов учета у абонентов
|
0,68%
|
|
-
Выявленные несанкционированные присоединения
|
0,017%
|
|
- Несоответствие фактического водопотребления и
данных,
|
3,01-9,01%
|
|
представленных
для выписки счета
|
|
|
Потери и утечки воды
|
7,8-13,8%
|
|
В том
числе:
|
|
|
- Скрытые утечки
|
6-12%
|
|
- Утечки при авариях и
повреждениях
|
0,87%
|
|
- Утечки через водоразборные
колонки
|
0,464%
|
|
- Утечки через уплотнения арматуры
|
0,32%
|
|
- Потери воды за счет естественной
убыли
|
0,12%
|
Как видно из табл. 4, общий объем
неучтенных расходов и потерь воды в 2001 году по СПиРВ Санкт-Петербурга
составлял 18,43% от среднесуточной подачи воды в сеть города.
В 2001 году было отремонтировано и
реконструировано 0,6% водопроводных сетей от общей их длины.
В табл.
5 приведены данные оценки неучтенных расходов и потерь воды в СПиРВ
Санкт-Петербурга за 2002 год. В отличие от предыдущего периода, в 2002 году
увеличился объем ремонтных работ на водопроводной сети. Всего в 2002 г. было
отремонтировано и реконструировано 1,13% трубопроводов от общей длины
водопроводных сетей города. Одновременно были проведены работы по улучшению
гидравлического режима работы СПиРВ города, в частности, регулирование числа
оборотов насосов, ликвидация причин гидравлических ударов, снижение напоров в
сети в ночное время и др.
Таблица
5.
Сводные
результаты оценки неучтенных расходов и потерь воды в СПиРВ Санкт-Петербурга
(2002 г.)
|
Неучтенные расходы и
потери воды
|
|
|
Всего
|
16,2%
|
|
Полезные неучтенные расходы
|
3,93-8,43%
|
|
В том числе:
|
|
|
-
Промывка сетей и тупиков
|
0,08%
|
|
-
Собственные нужды водопроводных п/станций
|
0,0038%
|
|
-
Чистка резервуаров п/станций
|
0,018%
|
|
-
Технологические нужды
|
0,003%
|
|
-
Спецтранс
|
0,041%
|
|
-
Реализовано абонентами без договора
|
0,009%
|
|
-
Тушение пожаров
|
0,012%
|
|
-
Проверка пожарных гидрантов
|
0,009%
|
|
-
Погрешность приборов учета водопроводных станций
|
1,955%
|
|
-
Погрешность приборов учета у абонентов
|
0,736%
|
|
-
Выявленные несанкционированные присоединения
|
0,069%
|
|
-
Несоответствие фактического водопотребления и данных, представленных для
выписки счета
|
1-5,55%
|
|
Потери и утечки воды
|
7,715-11,715%
|
|
В том числе:
|
|
|
-
Скрытые утечки
|
6-10%
|
|
-
Утечки при авариях и повреждениях
|
0,911%
|
|
-
Утечки через водоразборные колонки
|
0,478%
|
|
-
Утечки через уплотнения арматуры
|
0,326%
|
|
-
Потери воды за счет естественной убыли
|
0,12%
|
Как видно из данных табл.
4 и 5,
объем неучтенных расходов и потерь воды в СПиРВ Санкт-Петербурга за период с 2001 по 2002 г. сократился с
18,43% до 16,2%, вследствие увеличения объема работ по реконструкции и капитальному
ремонту сети (с 0,6% до 1,13% от общей длины сети) и работ по улучшению
гидравлического режима сети города.
Следует обратить внимание на то, что
значительную часть неучтенных расходов составляла неодновременность снятия
показаний водосчетчиков на водопроводных станциях и у абонентов, несоответствие
фактического водопотребления и данных, представленных для выписки счета. Это
положение приводит к вариациям разности в объемах подаваемой в сеть воды и
объемах потребленной по отчетным показателям.
Иллюстрацией несоответствия между
зафиксированной подачей и потреблением (по счетам) водопроводной воды в СПиРВ
Санкт-Петербурга может служить рис. 9.

Рис. 9.
Колебания (по месяцам года) общей подачи, реализации, неучтенных расходов и
потерь воды в распределительной водопроводной сети
5. Определение фактического
уровня водопотребления в жилищном фонде Санкт-Петербурга
5.1 Объекты исследований
В качестве объектов исследования
водопотребления в жилом фонде были выбраны следующие характерные для
Санкт-Петербурга категории зданий (по степени благоустройства):
- с централизованным горячим
водоснабжением;
- с местными (квартальными) котельными;
- с местными
(квартирными) водонагревателями;
- здания повышенной этажности с зонной
системой водоснабжения.
5.2. Проведение
обследований и измерений
Методика проведения исследований режима
водопотребления, потерь и утечек воды приведена в приложении 4.
Форма данных по выбранным объектам
приведена в табл. 6 .
Таблица 6
Форма данных
по домовладениям
|
Адрес
|
Кол-во
водопроводных вводов
|
Кол-во этажей
|
Кол-во квартир
|
Число жителей
|
Степень благоустройства (ЦГВ, МК,
МВН)
|
Зонирование
|
|
Отдельных
|
Коммунальных
|
|
|
|
|
|
|
|
|
|
|
|
|
|
|
|
|
|
|
|
|
|
|
|
|
|
|
|
|
|
|
|
|
|
|
|
|
Форма представления данных измерений
расходов и напоров для их последующей обработки дается ниже (табл. 7)
Таблица 7
Форма данных
измерений расходов и напоров по объектам
|
Адрес, степень благоустройства
|
Расходы воды
|
Удельные расходы
|
Плотность
заселения квартир, чел/кв
|
Доля отдельных квартир
|
Нэф.мин
|
Нэф.мах
|
Нэф.мин/Нэф.мах
|
|
|
|
|
Суточный м/сут
|
Ночной м/ч
|
Суточный л/чел. сут
|
Ночной
л/чел. сут
|
|
|
|
|
|
|
|
|
|
|
|
|
|
|
|
|
|
|
|
|
|
|
|
|
|
|
|
|
|
|
|
|
|
|
|
|
|
|
|
|
|
|
|
|
|
|
|
|
|
Колебания значений,
указанных в табл. 7 показателей, составляли:
- для домов с централизованным горячим
водоснабжением ЦГВ и местными котельными (МК):
- Удельный суточный расход холодной воды qуд - 94,6¸504,8 л/чел.сут,
- Плотность заселения квартир Пл - 2,1¸3,8 чел/кв,
- Доля отдельных
квартир, Док - 0,6¸0,98,
- Удельный ночной расход (утечки), qн.ут - 0¸7,4 л/чел.час,
- Соотношение Нэф.мин/Нэф.мах
- 0,61¸0,85,
где
Нэф.мин = (Нмин-Нзд2)
Нэф.мах = (Нмах-Нзд2)
- для домов с местными газовыми
водонагревателями (МВН):
- Удельный суточный расход воды qуд - 205,6¸515,7 л/чел.сут,
- Плотность заселения квартир Пл
- 2,2¸5,7 чел/кв,
- Доля отдельных квартир Док - 0,43¸0,97,
- Удельный ночной расход (утечки) qн.ут - 0,36¸11,8 л/чел.час,
- Соотношение Нэф.мин/Нэф.мах
- 0,66¸0,85.
5.3. Обработка результатов
измерений расходов и напоров и оценка объемов утечек воды в жилом фонде
Гистограммы распределения значений qуд
для домов с централизованным горячим водоснабжением (по холодной воде) показаны
на рис. 10

Рис. 10.
Гистограмма величин qуд для домов с централизованным горячим водоснабжением
Статистическая обработка результатов измерений
позволила получить следующие расчетные зависимости между указанными выше
переменными:
- Для домов с
централизованным горячим водоснабжением (ЦГВ):
qуд = 27,03qн.ут-48,68Пл-149,5Док+540,8Hэф.мин/Hэф.мах
R2 = 0,972; R = 0,945;
- Для домов с местными газовыми водонагревателями (МВН):
qуд = 22,4qн.ут-51,7Пл-18,7Док+558,4Hэф.мин/Hэф.мах
R2 = 0,99; R = 0,995;
Фактическая
величина потерь (утечек) воды qут с учетом колебаний напоров определяется
на основании данных о ночных расходах воды qноч.ут и напорах
в дневное и ночное время, по формуле (3):
(3)
где:
qноч.ут - минимальный (мгновенный) ночной расход воды, м3/сут;
K - эмпирический коэффициент, равный 0,85;
Hэф.дн - эффективный напор в дневное время;
Hэф.н - эффективный напор в ночное время.
Для
ориентировочных расчетов зависимости между средними значениями величин qуд, qн.ут и qут для домов с ЦГВ
получены в виде следующих уравнений (4-6):
qуд = 61·qу.ут, м3/сутки (4)
qн.ут = 0,016·qуд, м3/час (5)
qут = 19,8·qн.ут (6)
Средние показатели величин qуд, qн.ут и qут для домов с
различной степенью благоустройства приведены в табл. 8.
Таблица 8
Средние
показатели величин qуд и qут
|
Степень благоустройства
домовладений
|
Средние показатели величин
|
|
qуд, л/чел.сут
|
qн.ут,
л/чел. час
|
qут, л/чел.сут
|
|
ЦГВ
|
356,6* (в т.ч. холодная вода -
214)
|
5,22 (в т.ч. холодная вода - 3,13)
|
103,3(28,9%) (в т.ч. холодная вода
- 62)
|
|
МВН
|
400
|
7,42
|
146,9 (36,7%)
|
|
Зонное водоснабжение (дома
повышенной этажности)
|
408 (в т.ч. холодная вода - 230)
|
6,7 (в т.ч. холодная вода - 5,15)
|
132,7(32,5%) (в т.ч. холодная вода
- 102)
|
* - удельное потребление горячей воды
получено расчетом
Таким
образом, средние показатели утечек воды в жилом фонде составляют:
-
Для домов с ЦГВ - 28,9% от общего водопотребления
-
Для домов с МГВ - 36,7% от общего водопотребления
В
качестве примера эффективности проведения ремонта внутренней водопроводной сети
(ремонт и замена неисправной водоразборной арматуры и труб) в жилом фонде ниже
(табл. 9 и 10) приведены данные, полученные при изучении водопотребления в
серийном доме жилой застройки. Техническое состояние водоразборной арматуры в
этом доме характеризовалось данными, приведенными в табл. 9.
Таблица 9.
Техническое
состояние водоразборной арматуры в доме № 302
|
Показатели
|
Дом № 302
|
|
Количество
|
%
|
|
Всего квартир в доме
|
80
|
100%
|
|
Проверенных квартир
|
56
|
70%
|
|
Неисправных смесителей
|
33
|
29%
|
|
Неисправных регуляторов сливных
бачков
|
30
|
54%
|
|
Неисправных вентилей
|
36
|
64%
|
Таблица
10.
Удельное
водопотребление (холодная вода) в доме № 302 до и после ремонта водоразборной
арматуры
|
Показатели
|
До ремонта
|
После ремонта
|
Снижение %
|
|
Среднее удельное потребление,
л/чел в сут
|
345
|
218
|
36,8%
|
|
Ночное удельное потребление,
л/челчас
|
9,1
|
3,0
|
67%
|
Результаты измерений водопотребления в
этом доме до и после ремонта и замены водопроводной арматуры представлены в табл.
10.
Как
видно из табл.
10, ремонт и замена водоразборной арматуры в 70% квартир позволила
сократить удельное водопотребление на 36,8%, а утечки (ночные расходы) - на
67%.
Для
уточнения указанных данных и получения нормативов эксплуатационных
(рациональных) величин удельного водопотребления в жилом фонде следует
предусмотреть широкое проведение ремонтных работ (ремонт и замена неисправной
водоразборной арматуры) в жилом фонде. Эти мероприятия, в первую очередь,
следует провести в тех домовладениях, где выявлены наибольшие величины утечек
воды.
Порядок
проведения и эффективность поэтапной адресной программы по ликвидации утечек
воды в жилом фонде иллюстрируется рис. 11.

Рис. 11.
Эффективность поэтапного сокращения уровня утечек воды в жилом фонде
На
первом этапе проводятся ремонтные работы в 10% зданий жилого фонда, там, где
обнаружены наибольшие величины удельного водопотребления и где вероятны
наиболее высокие потери и утечки воды. Сокращение объема утечек в этих зданиях
до среднего уровня утечек, позволяет сократить водопотребление в жилом фонде
города на 10%, снизить среднюю величину удельного водопотребления с 356,6 до
321 л/чел. сут. Второй этап ремонтных работ проводится в группе зданий, где
выявлены следующие по значимости величины удельного водопотребления (8% зданий
жилого фонда). Это позволит снизить водопотребление в жилом фонде города на
15,6% (от первоначального) и сократить среднюю величину удельного
водопотребления до 301 л/чел. сут.
Последующее
проведение третьего и четвертого этапов ремонтных работ (рис. 11) позволит
сократить водопотребление в жилом фонде города до 20,5% (от первоначального) и
снизить среднюю величину удельного водопотребления до 283,6 л/чел.сут.
6. Мероприятия по
устранению потерь, утечек и непроизводительных затрат воды
Среди первоочередных мер должно предусматриваться:
борьба
с утечками и нерациональным использованием воды;
-
совершенствование методов и оборудования для дефектоскопии и диагностики
водопроводной сети;
-
устранение в кратчайшие сроки аварий и повреждений, изучение их причин с целью
предупреждения появления в будущем;
-
своевременное и качественное проведение текущего и капитального ремонтов;
-
модернизация оборудования водопроводных и насосных станций и др.
-
С этой целью должны быть проведены следующие работы:
-
внедрение новых, более обоснованных принципов нормирования водопотребления, в
частности, введение временных, а затем и постоянных рациональных норм
водопотребления населением (РНВН);
- применение новых методов и средств диагностики и дефектоскопии трубопроводов;
-
паспортизация и составление математической модели водопроводной сети;
-
применение труб из некорродирующих материалов, а также труб с внутренним
антикоррозионным покрытием;
-
применение новых методов ремонта и эксплуатации наружных и внутренних систем
водоснабжения;
-
применение более совершенной водопроводной арматуры и оборудования;
-
автоматическое управление работой системы подачи и распределения водопроводной
воды;
-
снижение подачи воды и напоров в сети в ночное время суток;
-
завершение создания системы полного учета воды при ее производстве,
транспортировке и потреблении, составление общего баланса по потреблению
питьевой воды населением;
-
наращивание темпов реконструкции распределительных трубопроводов;
-
полное обеспечение водопроводных станций и подстанций необходимыми для
бесперебойного водоснабжения объемами резервуаров чистой воды;
-
реконструкция насосных станций, оборудование всех насосных станций регуляторами
частоты вращения электродвигателей, что позволит повысить надежность работы
системы водоснабжения, уменьшить количество повреждений, сократить непроизводительные
расходы воды и уменьшить расходы электроэнергии, совершенствование
диспетчеризации и автоматизации управления всеми элементами системы
водоснабжения города;
-
оптимизация работы насосных станций и системы подачи и распределения воды;
-
расширение объемов проведения ремонта внутренних систем водоснабжения (ремонт и
замена неисправной водоразборной арматуры и труб) в жилом фонде, в первую
очередь в тех домовладениях, где выявлены наибольшие величины утечек воды;
-
применение во внутридомовых водопроводных сетях новой, водосберегающей
арматуры, регуляторов напоров, квартирных водосчетчиков. Наладка систем
горячего водоснабжения, обеспечение циркуляции воды.
1 Правила
пользования системами коммунального водоснабжения и канализации РФ.
Утверждены постановлением Правительства РФ № 167 от 12.02.1999.
2.
Инструкция по оценке и нормированию неучтенных расходов воды в системах
коммунального водоснабжения. Утверждена Постановлением Госстроя РФ от
31.03.2000 г. № 23.
3. Кожинов И.В., Добровольский Р.Г. Устранение потерь воды
при эксплуатации систем водоснабжения, М. Стройиздат, 1988.
4. Исследования по обнаружению утечек на Васильевском
острове. Отчет ГУП "Водоканал Санкт-Петербурга", 1999.
5.
Оценка уровня утечек, неучтенных расходов питьевой воды и разработка
эксплуатационных норм водопотребления для жилищного фонда г. Н. Новгорода.
Отчет. НИИ КВОВ, М.2000.
6.
Водоснабжение Санкт-Петербурга // Под редакцией Ф.В. Кармазинова. Изд.
"Новый мир". СПб, 2003.
7.
СанПиН
2.1.4.1074-01 Питьевая вода. Гигиенические требования к качеству воды
централизованных систем питьевого водоснабжения. Контроль качества. М.,
Госкомсанэпиднадзор России, 2001.
8.
Инструкция по составлению статистической отчетности о работе водопровода
(отдельной водопроводной сети, форма NQ 1 - водопровод). Утверждено
постановлением Госкомстата России от 7 сентября 1993 г.
9.
Кармазинов Ф.В. Передовые технологии в водопроводно-канализационном хозяйстве
Санкт-Петербурга //Журн. "Водоснабжение и санитарная техника", №
1,1997.
10.
Феофанов Ю.А. Повышение надежности систем водоснабжения городов (на примере
Санкт-Петербурга). Российская архитектурно-строительная энциклопедия, т.6. М.,
2000.
11.
Феофанов Ю.А. Проблемы и задачи в сфере обеспечения населения питьевой водой//
"Вода и экология", № 1, 2001.
12.
Рекомендации по установлению эксплуатационных норм водопотребления населением.
М., ОНТИ АКХ, 1981.
13.
Рекомендации по экспериментальной оценке эффективности технических решений,
направленных на сокращение расходов воды в жилых зданиях. ОНТИ АКХ, М., 1987.
14.
Рекомендации по выявлению и использованию резервов и снижению расходов
электроэнергии в действующих системах водоснабжения. Утверждено МЖКХ РСФСР 25
декабря 1975 г., М., ОНТИ АКХ, 1976.
15.
СНиП
3.05.04-85. Наружные сети водоснабжения и канализации.
16.
СНиП
2.04.02-84. Водоснабжение. Наружные сети и сооружения.
17.
СНиП
2.04.01-85. Внутренний водопровод и канализация зданий.
18.
Территориальные строительные нормы "Реконструкция и застройка исторически
сложившихся районов Санкт-Петербурга" ВСН-2000. СПб, 2000.
19.
Шевелев Ф.А., Орлов Г.А. Водоснабжение больших городов зарубежных стран. М.,
Стройиздат, 1987.
20.
Курганов A.M., Лебедев А.Ю., Лебедев Ю.Н. Определение мест повреждений
водопроводных сетей акустическими средствами с учетом топологии// Докл. 60-ой
научн. конф. СПбГАСУ СПб, 2003.
21.
Зайдель А.Н. Погрешности измерения физических величин. - Л. Наука, 1985.
22.
Зажигаев Л.С., Кишьян А.А., Романиков Ю.И. Методы планирования и обработки
результатов физического эксперимента. - М. Атомиздат, 1978
23.
Ахназарова С.Л., Кафаров В.В. Оптимизация эксперимента в химии и химической
технологии. - М. Высшая школа, 1978.
24. General
Report 4. Recent techniques in leak detection// Papers of IWSA 17-th Congress. 1988.
25. "Разработка нормативной документации по расчету
объема нереализованной воды в системах централизованного питьевого
водоснабжения и промводопровода г.Москвы". ГУП "Институт
МосводоканалНИИпроект". Отчет о НИР, М., 1998.
Текст
документа соответствует источнику.